Loading...
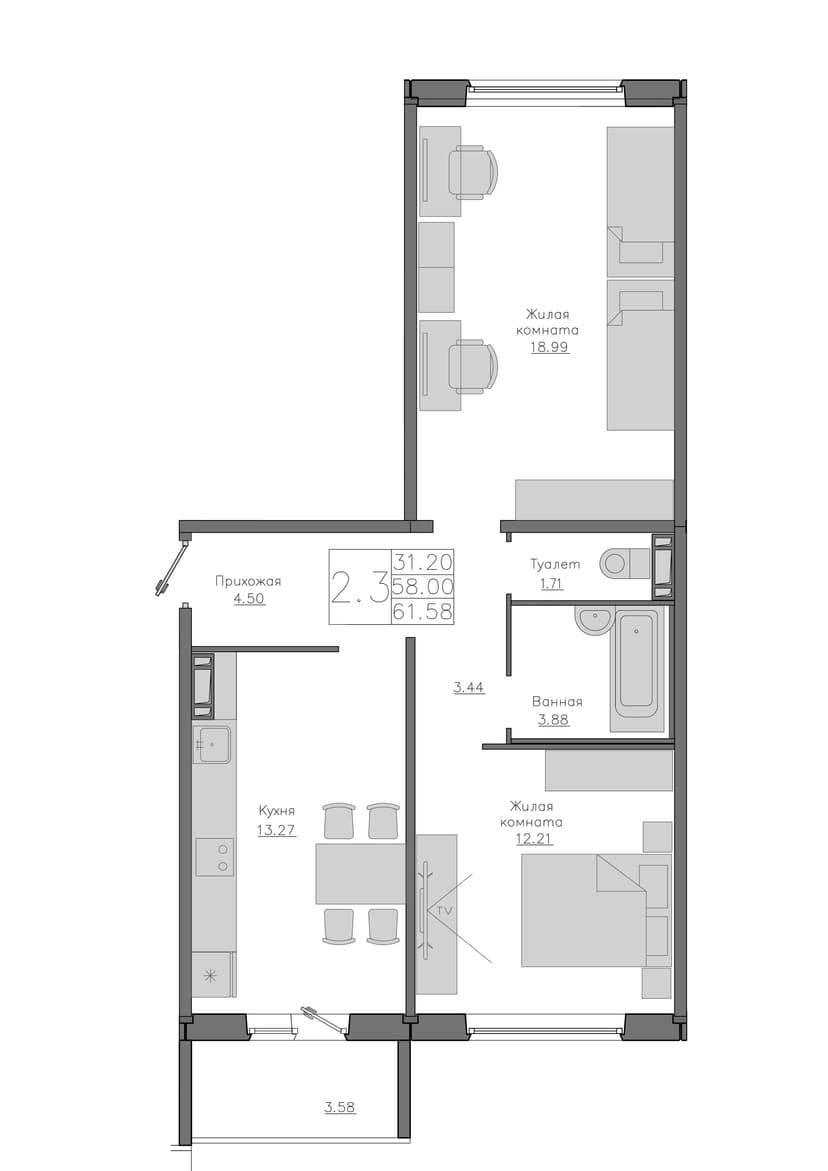
ул. Ворошилова, д. 11, Квартира 20