ООО СЗ “ПРОЕКТСТРОЙ”
Меню
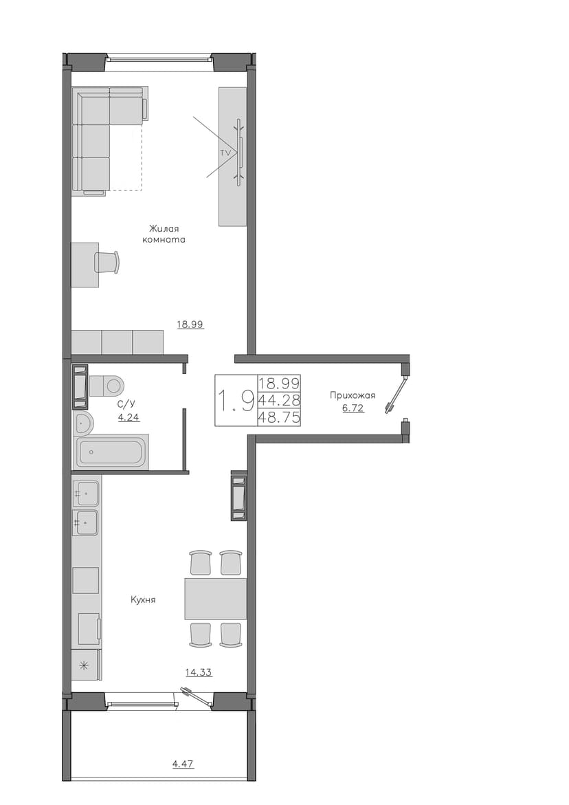
Площадь квартиры
Этаж
Доступность квартиры
Количество комнат - 1
Цена за м² - 106143 ₽
Стоимость