ООО СЗ “ПРОЕКТСТРОЙ”
Меню
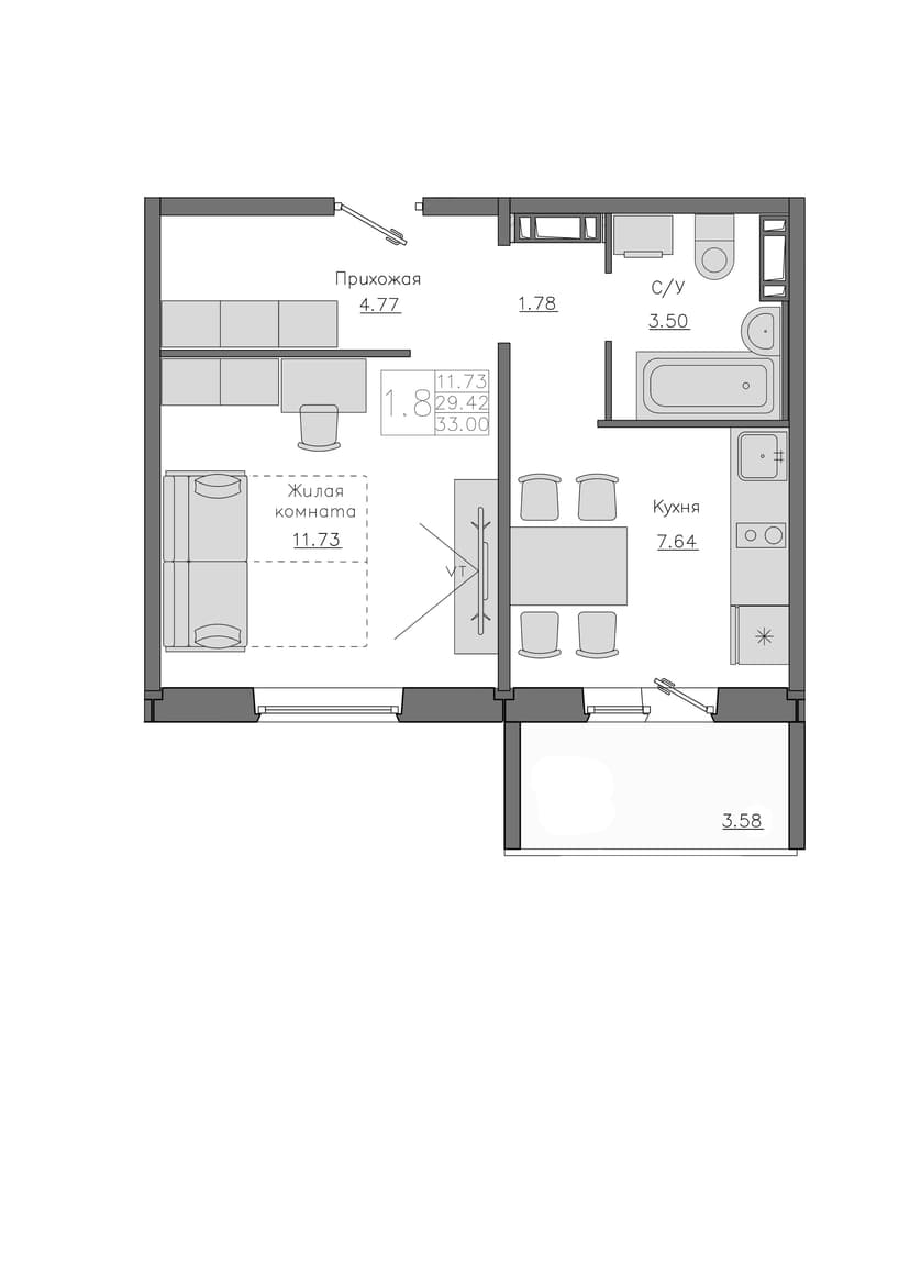
Площадь квартиры
Этаж
Доступность квартиры
Количество комнат - 1
Цена за м² - 125765 ₽
Стоимость